|
|
|
|
| Что: | Коммерческая недвижимость |
| Где: | Австрия |
| Сколько: | 2.000.000 € |
Охраняемый объект
Постпродажное управление
Услуги садовника
В центре города
Рядом с центром
Частная парковка
Инфраструктура рядом|
в Австрии продается: 22 Апартаментов 31 Вилла 15 Пентхаусов 8 Квартир 38 Домов 59 Шале 13 Замка 3 Таунхауса 2 Участков земли 15 Особняков 21 Коммерческая недвижимость |
















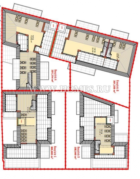
Проект жилой недвижимости в городе Лаксенбург, Австрия. Участок L-образной формы, площадь участка 2.231 кв.м, с одной стороны участок прилегает к дороге. Планируется постройка четырехэтажного дома из 4 блоков с подземным гаражом. На участке находится здание под снос. В проекте 16 квартир жилой площадью 2.060 кв.м нетто, 360 кв.м садов и 600 кв.м террас и балконов.
В сумме получается 2.200 кв.м и 31 подземных парковочных мест. Из-за особенностей строительных условий в Лаксенбурге запрещено размещать более 4 квартир на участке. Продавец участка предлагает разделить участок на 4 части. Это напрямую влияет на размер квартир: при оптимальной застройке (достигается максимальная жилая площадь) средняя площадь квартиры 130 кв.м.
Основная концепция проекта "Жилье и работа" направлена на людей «свободных профессий»: врачей, адвокатов, архитекторов и т. д., которые могли бы жить и работать в одном месте. Так как большинство квартир занимают 2 или 3 этажа, функциональное разделение не вызовет затруднений.
Участок расположен в отличном месте прямо напротив пешеходной зоны Schloßplatz в самом центре города. Автобан A2 (25 минут до центра Вены). Электричка S1 (20 минут до аэропорта Вены).
![]() вернуться назад |
![]() добавить в выбранные |
![]() просмотреть выбранные |
![]() версия для печати |
